
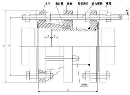
傳力接頭分類有:單發蘭傳力接頭、雙法蘭松傳力接頭、可拆式雙法蘭傳力接頭。
傳力接頭材質:主要有Q235碳鋼、不銹鋼、鑄鋼、球墨鑄鐵等。不同的用途選用不同的材質和型號。


|
序號
|
名稱
|
數量
|
材料
|
|
1
|
本體
|
1
|
QT400-15、Q235A、ZG230-450、20
|
|
2
|
密封圈
|
1
|
NBR
|
|
3
|
壓蓋
|
1
|
QT400-15、Q235A、ZG230-450、20
|
|
4
|
限位短管法蘭
|
1
|
Q235A、20、16Mn
|
|
5
|
螺母
|
4n
|
Q235A、20、1Cr18Ni9Ti
|
|
6
|
長螺柱
|
n
|
Q235A、35、1Cr18Ni9Ti
|
|
7
|
螺柱
|
n
|
Q235A、35、1Cr18Ni9Ti
|
VSSJAF型雙法蘭傳力接頭數據表
|
公稱通徑
|
管子外徑
|
外形尺寸
|
伸縮量
|
法蘭連接尺寸
|
||||||
|
Dw
|
L
|
L1
|
0.6MPa
|
1.0MPa
|
||||||
|
D
|
D1
|
n-d。
|
D
|
D1
|
n-d。
|
|||||
|
65
|
76
|
340
|
105
|
50
|
160
|
130
|
4-¢14
|
185
|
145
|
4-¢18
|
|
80
|
89
|
190
|
150
|
4-¢18
|
200
|
160
|
8-¢18
|
|||
|
100
|
108
|
210
|
170
|
220
|
180
|
|||||
|
114
|
||||||||||
|
125
|
133
|
240
|
200
|
8-¢18
|
250
|
210
|
||||
|
140
|
||||||||||
|
150
|
159
|
265
|
225
|
285
|
240
|
8-¢22
|
||||
|
168
|
||||||||||
|
200
|
219
|
320
|
280
|
340
|
295
|
|||||
|
250
|
273
|
370
|
335
|
12-¢18
|
395
|
350
|
12-¢22
|
|||
|
300
|
325
|
350
|
130
|
65
|
440
|
395
|
12-¢22
|
445
|
400
|
|
|
350
|
377
|
490
|
445
|
505
|
460
|
16-¢22
|
||||
|
400
|
426
|
540
|
495
|
16-¢22
|
565
|
515
|
16-¢26
|
|||
|
450
|
480
|
595
|
550
|
615
|
565
|
20-¢26
|
||||
|
500
|
530
|
645
|
600
|
20-¢22
|
670
|
620
|
||||
|
600
|
630
|
755
|
705
|
20-¢26
|
780
|
725
|
20-¢30
|
|||
|
700
|
720
|
860
|
810
|
24-¢26
|
895
|
840
|
24-¢30
|
|||
|
800
|
820
|
590
|
220
|
130
|
975
|
920
|
24-¢30
|
1015
|
950
|
24-¢33
|
|
900
|
920
|
1075
|
1020
|
1115
|
1015
|
28-¢33
|
||||
|
1000
|
1020
|
1175
|
1120
|
28-¢30
|
1230
|
1160
|
28-¢36
|
|||
|
1200
|
1220
|
1405
|
1340
|
32-¢33
|
1455
|
1380
|
32-¢40
|
|||
|
1400
|
1420
|
1630
|
1560
|
36-¢36
|
1675
|
1590
|
36-¢42
|
|||
|
1500
|
1520
|
1730
|
1660
|
-
|
-
|
-
|
||||
|
1600
|
1620
|
1830
|
1760
|
40-¢36
|
1915
|
1820
|
40-¢48
|
|||
|
1800
|
1820
|
2045
|
1970
|
44-¢40
|
2115
|
2020
|
44-¢48
|
|||
|
2000
|
2020
|
2265
|
2180
|
48-¢42
|
2325
|
2230
|
48-¢48
|
|||
|
2200
|
2220
|
2475
|
2390
|
52-¢42
|
2550
|
2440
|
52-¢56
|
|||
|
2400
|
2420
|
2685
|
2600
|
56-¢42
|
2760
|
2650
|
56-¢56
|
|||
上一篇:【VSSJAFG型單法蘭傳力接頭】
下一篇:【VSSJAFC型可拆式雙法蘭傳力接頭】

豫公網安備 41910102000522號
地址:鞏義市永安路南段 0371-64393352 64580820 傳 真:0371-64031200 手 機:15903663076